HOME >> 資料ダウンロード

資料ダウンロード

浅草公会堂のご利用を検討いただく際、また実際の企画を立てられる際の資料としてご活用ください。

全体

浅草公会堂イラストマップ

浅草公会堂イラストマップ

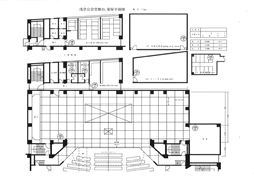
浅草公会堂フロア図(B1~5F)

浅草公会堂フロア図(B1~5F)

PDF

ページTOP

ホール

【ホール】座席表

ホール座席表2023.05.08更新

PDF
【ホール】舞台設備/備品表

ホール舞台設備/備品表

PDF
【ホール】ステージ平面図

ホールステージ平面図

PDF
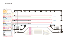
【ホール】舞台断面図

ホール舞台断面図

PDF
【ホール】照明バトン割

ホール照明バトン割

PDF
【ホール】照明基本仕込み図

ホール照明基本仕込み図

PDF
【ホール】照明基本回路図

ホール照明基本回路図

PDF
【ホール】照明機材リスト

ホール照明機材リスト

PDF
【ホール】調光卓

ホール調光卓

PDF
【ホール】スピーカー配置図

ホールスピーカー配置図

PDF
【ホール】音響備品リスト

ホール音響備品リスト2025.10.22更新

PDF
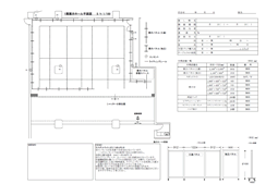
【ホール】舞台・楽屋平面図

ホール舞台・楽屋平面図

PDF
【ホール】追加楽屋価格表

ホール追加楽屋価格表2022.01.04更新

PDF
【ホール】付帯設備価格表

ホール付帯設備価格表2022.01.04更新

PDF

ページTOP

集会室

【集会室】第1集会室平面図

集会室第1集会室平面図

PDF
【集会室】第2集会室平面図

集会室第2集会室平面図

PDF
【集会室】第3集会室平面図

集会室第3集会室平面図

PDF
【集会室】付帯設備価格表

集会室付帯設備価格表2022.01.04更新

PDF

ページTOP

展示ホール

【展示ホール】平面図

展示ホール平面図

PDF
【展示ホール】打合せ用紙

展示ホール打合せ用紙

PDF